ŠÔŽæ‚è

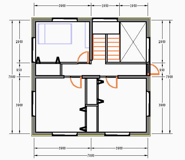
7.8‚ x 7.8‚
Ž{H–ÊÏ 34’Ø
Ë㉺ŠK‹tˆÄ
Ë•½‰®ƒvƒ‰ƒ“


1F

yŠO’f”MEƒKƒ‹ƒoƒjƒEƒ€’£‚èz
ŒºŠÖ
20ôLDk
ô–ÊŠ •—˜C
’EˆßŠ/ƒ‰ƒ“ƒhƒŠ[
ƒgƒCƒŒ
madori_1f_rc_f.gif

2F

yŠO’f”MEƒKƒ‹ƒoƒjƒEƒ€’£‚èz



ƒgƒCƒŒ
madori_2f_rc_f.gif


gaikan_rc_f.gif
3d.jpg
rc_vrml.jpg
ƒCƒGƒXƒ}ƒCƒnƒEƒX‚Å쬂µ‚½}
VRMLŒ¾Œê‚Å쬂µ‚½}
vrml_3d2.jpg vrml_3d3.jpg

return